盂县自然资源局

为了加强城市规划的监督管理,强化公众参与公众监督,切实保障公共利益,根据《中华人民共和国城乡规划法》《中华人民共和国行政许可法》等相关法律法规,现将阳泉北站站前广场酒店、公寓式写字楼--加建会议室(多功能厅)工程项目规划方案予以公示。
公示旨在征询公众意见,并非最终审批结果,公众意见将作为审批决策的重要依据。
一、公示时间:2025年2月27日至2025年3月7日。
二、公示地点:盂县人民政府网、项目现场
三、联系电话:0353-8083626
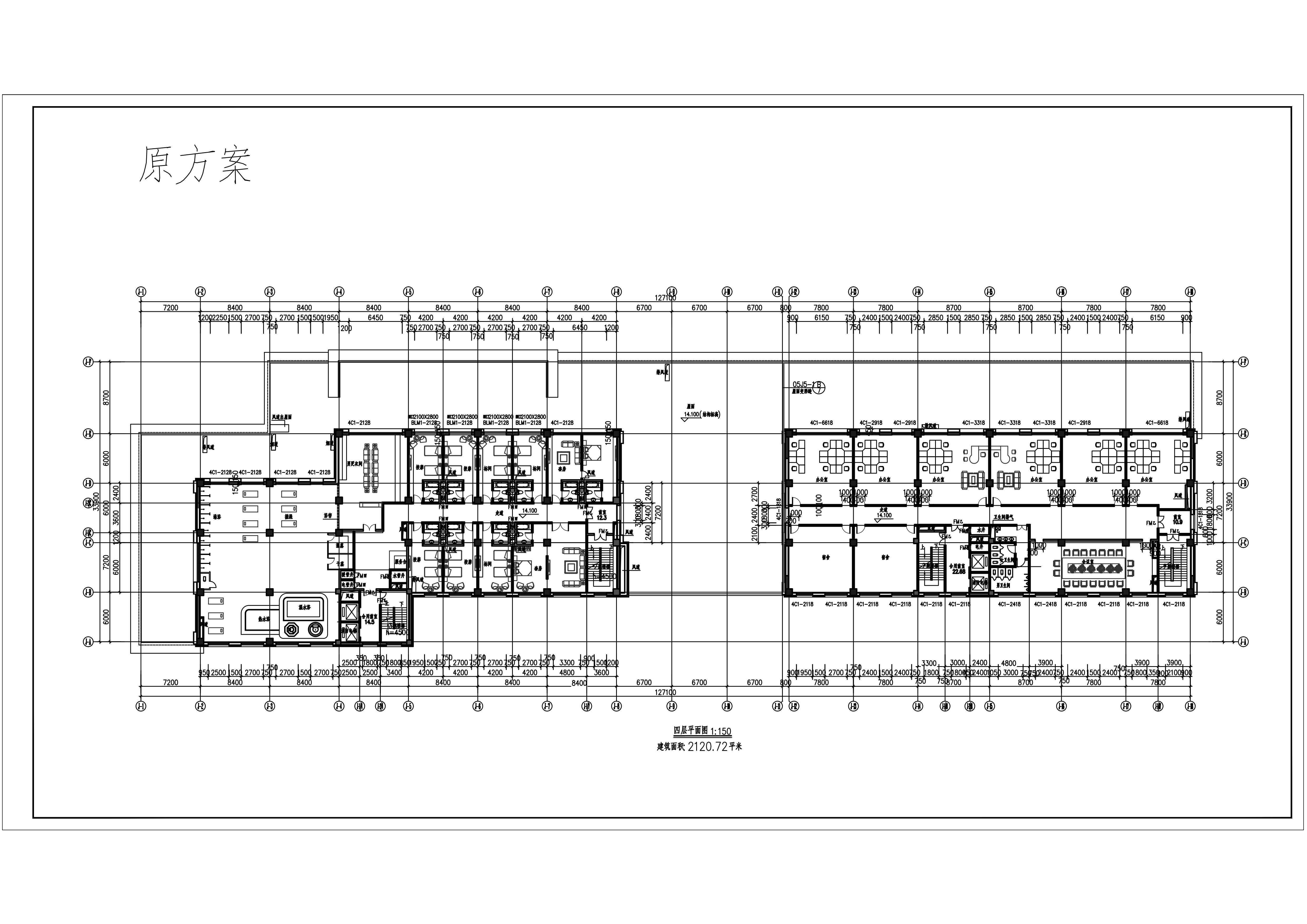
四、公示内容:详见附图
如果您对该规划项目有意见表达,请在公示期间内通过以下方式进行反馈:
1、信函反馈请至件盂县自然资源局
2、网络反馈请发送邮件至反馈信箱zrzyghgl@163.com
反馈须知:必须注明真实姓名、联系电话、联系地址、如反馈信息不准确或不完整,导致无法核实有关情况的视为无效。
盂县自然资源局
2025年2月27日



